BART 08 BART 09 BART 03 BART 04 BART 05 BART 07 BART 10 BART 11 BART 12

Assainissement d'une maison de maître

CORCELETTES / VD

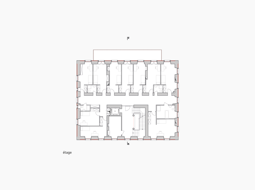
Le bâti­ment de la fon­da­tion Bar­timée est un ouvrage his­torique de note 2 (objet d’in­térêt région­al — recense­ment archi­tec­turale du can­ton de Vaud), datant de 1834 et con­stru­it — selon ce que le mythe en a retenu — par Mon­sieur Bour­go­is-Dox­at (18031865) dernier com­man­dant en chef de l’armée vau­doise pour sa femme. En 1994 et suite à la créa­tion de la fon­da­tion Bar­timée, la bâtisse trou­ve sa voca­tion actuelle : celle d’accueillir, de soutenir ain­si que d’ac­com­pa­g­n­er à une réin­ser­tion sociale ou pro­fes­sion­nelle des adultes présen­tant des trou­bles liés à l’utilisation de substance(s).

Vieil­lis­sant et accélérant ain­si l’urgence de son assainisse­ment énergé­tique, l’État de Vaud pri­orise sa mise à niveau. L’élaboration d’un con­cept énergé­tique exem­plaire – lié aux investisse­ments du can­ton – se déploie alors selon plusieurs axes. L’enveloppe tout d’abord : avec un périmètre d’isolation au plus con­tinu et ren­for­cé tout en né dénat­u­rant pas la façade. Un crépi isolant mince, avec préser­va­tion des sail­lies des appareil­lages de fenêtres est notam­ment mis au point. Des fenêtres per­for­mantes via la mise en œuvre de « ver­res Fineo » sont sélec­tion­nées. Tan­dis qu’un audit PEIK com­plet est réal­isé, et assure la mise en œuvre des poten­tiels d’économie élec­trique. Cepen­dant, ces pos­si­bil­ités mul­ti­ples énergé­tiques & pro­por­tion­nées né per­me­t­tent pas d’atteindre les objec­tifs fixés. Des mesures com­pen­satoires sont alors activées : change­ment de chauf­ferie (bois) et équipement en pan­neaux pho­to­voltaïques des toi­tures des annexes.

  • Ouvrage : bâti­ment d’hébergements sociaux
  • Site : en lim­ite de par­celles agri­coles avec prox­im­ité du lac de Neuchâtel
  • MO : privé
  • SBP : 1508 m²
  • Matériau : con­struc­tion d’époque (murs en moel­lons, soli­vage bois et planch­er, belles bois­eries intérieures)
  • Particularités : util­i­sa­tion de crépis isolant et change­ment des vit­rages de fenêtres pour min­imiser l’impact des trans­for­ma­tions sur les façades (int. & ext.)